Toggle Navigation
507-535-3530
Coming Soon
Services
Drafting & Design
Conceptual/Bid/Permit Drawings
3D Modeling/Rendering
3D Flyovers
3D Walkthroughs
3D Isometric Floor Plans
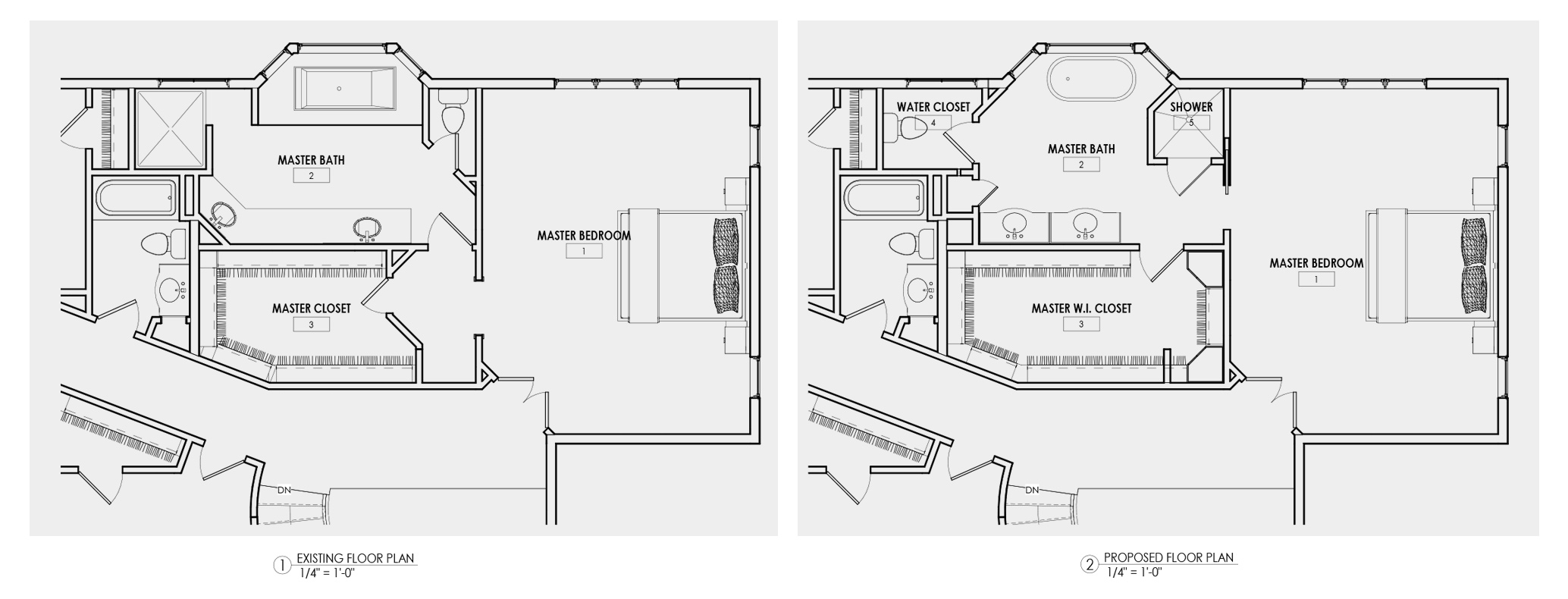
Remodeling Floor Plans
Additional Services
Site Layouts
Material Quantity Estimates
© Mortarless Systems Engineering dba The Draft Source, Inc.